Historische boerderij in prachtige bosrijke omgeving (Huiscode: 475)
Deze vakantieboerderij is omgetoverd tot een sfeervolle en ruime groepsaccommodatie voor maximaal 28 personen. Dit vakantieadres en de locatie hebben iets unieks. Je stapt echt even een andere wereld in. Het dorp en de accommodatie ademen de gemoedelijke sfeer van het (historische) Drentse platteland. Beleef het zelf in deze prachtige accommodatie! 
Je beschikt over een grote huiskamer (160m2) die genoeg ruimte biedt voor een ontspannen verblijf met een complete groep. Naast de ‘huiskamer’ is er een aparte eetkamer waar je met z’n allen kunt eten. Beide ruimten zijn sfeervol ingericht, overal komen historische elementen terug. De keuken is van alle gemakken voorzien zoals 6-pits gasfornuis, grote horeca koelkast, vriezer, oven, magnetron en vaatwasser. 
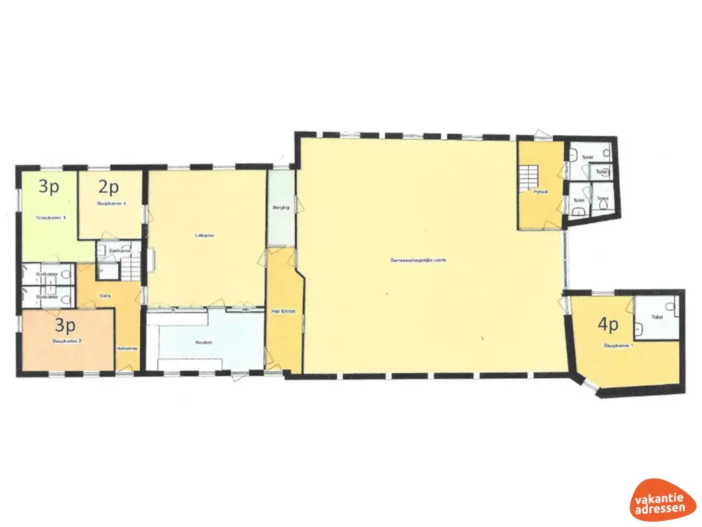
Onder het rietgedekte dak zijn 10 slaapkamers en 10 badkamers. Elke kamer is voorzien van luxe 1-persoons boxspringbedden en een eigen badkamer met douche en toilet. Beneden vind je 4 slaapkamers en boven de andere 6 slaapkamers. De slaapkamers zijn ruim opgezet waardoor het bijplaatsen van 2 bijplaats bedden tot de mogelijkheden behoort. In totaal beschikt de accommodatie over 28 bedden. Voor mindervaliden is er een badkamer met aangepaste douche en toilet. 
Buiten geniet je van je eigen tuin met tuinmeubelen. Op het terrein zijn een speelveld met speeltoestellen, voetbalveld en volleybalveld aanwezig. De omgeving is verrassend groen en leent zich goed om eropuit te gaan. Vanuit de accommodatie wandel je zo via de hei naar de ijzertijdboerderij! Maak met het hele gezelschap een geweldige huifkartocht en ontdek niet alleen de prachtige natuur, maar ook de cultuur van Drenthe. Bezoek leuke themadagen, karakteristieke restaurantjes en speciale markten (zoals de brocante fairs).
De accommodatie is voorzien van 10 slaapkamers en 10 badkamers
Beneden:
Slaapkamer 1: 4x 1-persoons boxspringbed + aangepaste badkamer met douche en toilet 
Slaapkamer 2: 3x 1-persoons boxspringbed + douche en toilet
Slaapkamer 3: 3x 1-persoons boxspringbed + douche en toilet
Slaapkamer 4: 2x 1-persoons boxspringbed + douche en toilet
Boven:
Slaapkamer 5: 3x 1-persoons boxspringbed + douche en toilet
Slaapkamer 6: 2x 1-persoons boxspringbed + douche en toilet
Slaapkamer 7: 2x 1-persoons boxspringbed + douche en toilet
Slaapkamer 8: 2x 1-persoons boxspringbed + douche en toilet
Slaapkamer 9: 3x 1-persoons boxspringbed + douche en toilet
Slaapkamer 10: 2x 1-persoons boxspringbed + douche en toilet
De slaapkamers zijn ruim opgezet waardoor het bijplaatsen van 2 bijplaatsbedden tot de mogelijkheden behoort.
We hebben met de familie genoten , en iedereen een eigen slaapkamer met badkamer. Perfect. De omgeving is prachtig en we hadden het geluk dat er een gezellige herfst fair in het dorp was.
We hebben een fantastische week gehad met de familie om een verjaardag te vieren. De grote gemeenschappelijke ruimten waren echt fantastisch en ondanks het grote formaat toch gezellig. De kamers met voor iedereen eigen sanitair waren ook top. Zeker de kamer met miva-sanitair maakte dat opa ook goed mee kon. De schoonmaak was suboptimaal maar heeft ons in deze feestweek niet gestoord. De verhuurders zijn fijne sympathieke mensen die ook wat extra verzoekjes van ons fantastisch opgelost hebben.
We hebben het allemaal naar ons zin gehad. We waren met 25 personen, waarvan 4 kinderen. Weer voor herhaling vatbaar.😍
Heerlijk verblijf gehad met een grote vriendengroep! Fijne plek om te zijn, wel liggen de verschillende groepsverblijven dicht bij elkaar. De andere waren niet verhuurd maar anders zit je wel erg op elkaar lip. Het dorpje is gezellig en wandel je zo in. Fijn dat elke kamer een eigen badkamer heeft. Al met al een heerlijke tijd gehad!
Wij hebben met mijn familie met totaal 23 personen verbleven bij deze accommodatie. We hebben hier veel plezier aan beleefd en zijn tevreden over deze ruime, sfeervolle, heel mooi gelegen accommodatie. In die zin is het een aanrader. Toch heb ik nog een paar opmerkingen / kanttekeningen / aanbevelingen: nu we met zoveel personen daar verbleven, en daar ook voor gekookt werd, merkte ik, dat de keuken echt te klein is als meerdere personen (meer dan 4) daar "hun ding" wilden doen.
Doelgroepen
- Dit vakantieadres is geschikt voor :
- Familie
- School / Jeugdkamp
- Sportvereniging
- Vriendengroep onder de 30 jaar
- Vriendengroep boven de 30 jaar
- Dit vakantieadres wordt niet verhuurd aan:
- Studenten
- Feestgroep
- Jongeren onder de 25 jaar
- Voetbalteam
Algemeen
- Huisdieren toegestaan
- 2 huisdieren zijn toegestaan
- WiFi
- 10 Douches
- 12 Toiletten
- 10 Wastafels
- 2 Kinderbedjes
- 2 Kinderstoelen
Faciliteiten
- Woonkamer
- Televisie
- Keuken
- 6 Aantal gaspitten / kookplaten
- Koelkast
- Diepvries
- Magnetron
- Oven
- Vaatwasmachine
- Koffiezetapparaat (filter)
- Dekbedden
- Kussens
- Alle slaapkamers zijn voorzien van eigen douche, toilet en wastafel
- Centrale verwarming
Indoor recreatievoorzieningen
- Sjoelbak
Outdoor recreatievoorzieningen
- Tuin
- Tuinmeubelen
- Speelveldje
- Voetbalveld
- Volleybalveld
- Tafeltennistafel (buiten)
- Speeltoestellen
- Kinderen kunnen binnen een omheining spelen
Mindervaliden
- Aangepast toilet
- Aangepaste douche
- Alarmeringssysteem voor mindervaliden
Ligging van de locatie
- Accommodatie wordt uitsluitend door u gehuurd
- Meerdere accommodaties op het terrein
- Landelijk gelegen
- Bosrijke omgeving
- In het centrum
- Buiten het centrum
- Nabij een natuurgebied
Energielabel
- Niet vereist
Natuur
De groepsaccommodatie is gelegen aan een groot natuurgebied in het midden van Drenthe. Dit prachtige gebied bestaat uit bos en een uitgestrekte heidevelden. Er zijn verschillende wandelroutes en fietsroutes gelegen, waarbij het tevens mogelijk is om het Herinneringscentrum van Kamp Westerbork te bezoeken. Eveneens op korte afstand bevinden zich een aantal Nationale parken; Het Drents- Friese wold, het Dwingelerveld en de Beek en Esdorpenlandschap de Drentsche Aa.
Activiteiten
Op loopafstand bevindt zich het mooie monumentendorp Orvelte waar je o.a. kunt genieten van oude ambachten, zoals De Smidse, De Klompenmaker en een prachtige Schaapskooi. Uniek in Orvelte is Zoo Bizar, de kleinste Zoo van Nederland met diverse kleine (exotische) diersoorten. Zeker met kinderen is dit echt een bezoek waard! In de nabije omgeving zijn er ontelbaar veel mogelijkheden voor een onvergetelijke dag uit zoals Kamp Westerbork, Hunebedcentrum in Borger, Adventure Zoo Wildlands in Emmen. Wanneer je toe bent aan een verfrissende duik, is dit mogelijk in een van de vele natuurzwembaden in de omgeving of in het overdekte zwembad in Beilen.
Steden en dorpen
Het dorp Westerbork is met de auto gelegen op 10 minuten afstand. Hier vind je alle benodigde voorzieningen zoals een dokter, apotheek, supermarkt, pinautomaat, snackbar, bakker en diverse andere winkels. Ook zijn hier een aantal restaurants waar je heerlijk kunt eten. De stad Assen bevindt zich op 15 minuten rijden en Groningen is drie kwartier rijden. Kortom, dit is een ruime locatie in een rustige omgeving, maar met voldoende vertier (desgewenst) gemakkelijk bereikbaar.
 
        Rianne
 
        Mathilde
 
        Jisk
- 
                
                Kies een aankomst & vertrek en vul het boekingsformulier in. De verhuurder zal vervolgens contact met je opnemen om de boeking verder af te handelen. Wanneer de verhuurder de boeking heeft goedgekeurd, ontvang je automatisch een e-mail. 
- 
                
                Bij de meeste vakantieadressen is het mogelijk om een optie te plaatsen. - Een optie plaats je wanneer je bijna zeker weet dat je gaat boeken, maar nog even met de rest van de groep wilt overleggen. Het vakantieadres wordt dan tijdelijk voor jou geblokkeerd. - Om ervoor te zorgen dat er niet teveel vakantieadressen tijdelijk worden geblokkeerd, kun je maximaal 3 opties tegelijk hebben lopen. - Wil je een kijkafspraak inplannen? Plaats dan eerst een optie op de voorkeursperiode. - Een optie is kosteloos & vrijblijvend, en veelal 3 tot 5 dagen mogelijk. Binnen deze termijn laat je de verhuurder weten of je de optie wenst om te zetten in een boeking. - Opties zijn pas definitief nadat deze door de verhuurder zijn bevestigd. 
- 
                
                
 Ja, dat kan in de meeste gevallen. Je dient eerst een optie te plaatsen op de periode die je eventueel wilt boeken. Bij de opmerkingen geef je aan dat je een kijkafspraak wilt inplannen. De verhuurder neemt vervolgens contact met je op om een kijkafspraak in te plannen. Heb je nog geen definitieve datum? Ook dan is het nodig om een optie te plaatsen, waarbij je bij de opmerkingen vermeldt dat je nog geen definitieve datum hebt. Let op: het inplannen van een kijkafspraak vraagt om afstemming met de verhuurder en is daarom niet op de dag zelf (vandaag) mogelijk.360° tour
- 
                
                Selecteer de door jou gewenste aankomst & vertrekdata in de kalender, voer het aantal personen in en je ziet direct de totaalprijs én de omgerekende prijs per persoon. 
- 
                
                Ja, het stellen van een vraag kan eenvoudig door het invullen van het optieformulier. De vraag plaats je vervolgens bij 'Uw gegevens' > 'Persoonlijk bericht voor de verhuurder'. De verhuurder zal de vraag zo spoedig mogelijk beantwoorden. 
- 
                
                Ja, dat is mogelijk. Vul hiervoor het optieformulier in en stel je vragen alvast in het 'opmerkingen' veld. Dit kun je eenvoudig ingeven bij 'Uw gegevens' > 'Persoonlijk bericht voor de verhuurder'. De verhuurder kan aan de hand daarvan direct telefonisch contact met je opnemen! 
- 
                
                Op onze websites worden vanuit privacy overwegingen geen adresgegevens van vakantieadressen getoond. Op de kaart bij 'Locatie vakantieadres & overzicht Groepsactiviteiten' vind je een nauwkeurige weergave van de locatie van het vakantieadres. Na je boeking ontvang je de adresgegevens van de verhuurder. 
- 
                
                Nadat de verhuurder je boeking heeft goedgekeurd, ontvang je van de verhuurder een boekingsbevestiging inclusief betalingstermijnen. Je betaalt dus rechtstreeks aan de verhuurder. De verhuurder is vrij om zijn eigen betalingstermijnen te hanteren. Veelvoorkomend is een aanbetaling van ca. 50% binnen 2 weken na boeken en de resterende 50% uiterlijk 6 weken voor aankomst. 
- 
                
                Nee, het is niet mogelijk om kosteloos te annuleren. Met het plaatsen van een boeking ontstaat er een betaalverplichting wanneer je boeking door de verhuurder is geaccepteerd. Iedere verhuurder is vrij om zijn eigen annuleringsbeleid te bepalen. De verhuurder zal je hiervan op de hoogte stellen bij het versturen van de boekingsbevestiging. Veelvoorkomend in onze sector zijn de volgende annuleringstermijnen en bijbehorende percentages. - Bij een annulering meer dan 12 maanden voor aankomst, 10% van het totaalbedrag.
- Bij een annulering binnen 6 tot 12 maanden voor aankomst, 30% van het totaalbedrag.
- Bij een annulering binnen 4 tot 6 maanden voor aankomst, 70% van het totaalbedrag.
- Bij een annulering binnen 2 tot 4 maanden voor aankomst, 80% van het totaalbedrag.
- Bij een annulering binnen 2 maanden voor aankomst, 95% van het totaalbedrag.
- Bij een annulering op of na de dag van aankomst, 100% van het totaalbedrag.
 Desgewenst kun je ervoor kiezen om een (groeps)annuleringsverzekering af te sluiten. Voer eerst de gewenste datum én het aantal personen in. Vervolgens wordt in het optie- of boekingsformulier de premie(kosten) getoond, waarna je de groepsannuleringsverzekering desgewenst kunt toevoegen. 
- 
                
                Ja, het is mogelijk om via Vakantieadressen.nl een groepsannuleringsverzekering bij te boeken. Voer eerst de gewenste datum én het aantal personen in. Vervolgens wordt in het optie- of boekingsformulier de premie(kosten) getoond, waarna je de groepsannuleringsverzekering desgewenst kunt toevoegen. Belangrijk: een eigen (doorlopende) annuleringsverzekering dekt doorgaans alleen de annuleringskosten voor de personen die vermeld staan op de polis, en dus niet de hele groep. Daarom raden wij een groepsannuleringsverzekering aan. Alle personen die meegaan, vallen dan onder de dekking. 
- 
                
                    Bekijk hier alle veelgestelde vragen
                
                
 
 
 
 
 
 
 
 
 
 
 
 
 
 
 
 
 
 
 
 
 
 
 
 
 
 
 
 
 
 
 
 
 
 
 
 
 
 
 
 
 
 
 
.webp) 
 
 
 
 
 
 
 
